








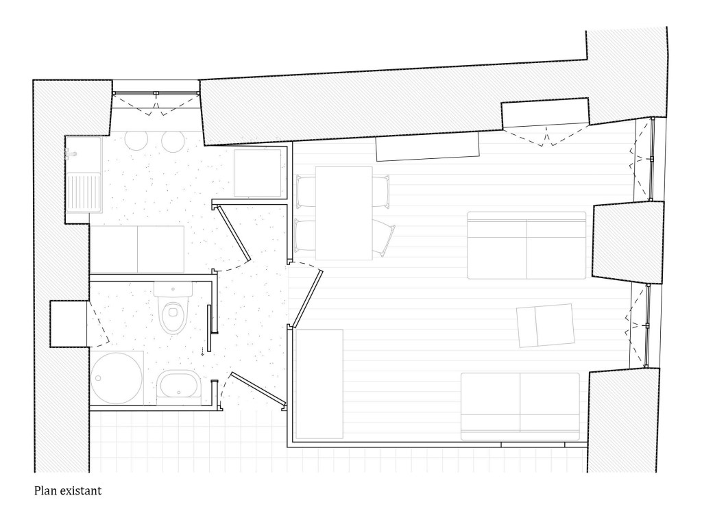
Aménagement et rénovation complète d'un studio dans la Haute Ville de Granville avec création de mobilier sur mesure
Lieu : Granville
Surface : 30 m²
Budget : 30 000 € HT
Statut : Livré en 2020









Aménagement et rénovation complète d'un studio dans la Haute Ville de Granville avec création de mobilier sur mesure
Lieu : Granville
Surface : 30 m²
Budget : 30 000 € HT
Statut : Livré en 2020