






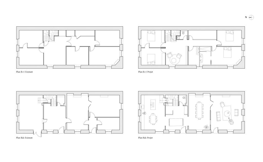
Réhabilitation d'une maison traditionnelle champenoise
Lieu : Ecueil
Surface : 250 m²
Budget : 300 000 € HT
Statut : Livraison 2025







Réhabilitation d'une maison traditionnelle champenoise
Lieu : Ecueil
Surface : 250 m²
Budget : 300 000 € HT
Statut : Livraison 2025