





Lauréat, avec Carole Valleau, de l’appel à idées « Je réinvente ma maison, vers une évolution des typologies traditionnelles du Calvados »
Lieu : Souleuvre-en-Bocage
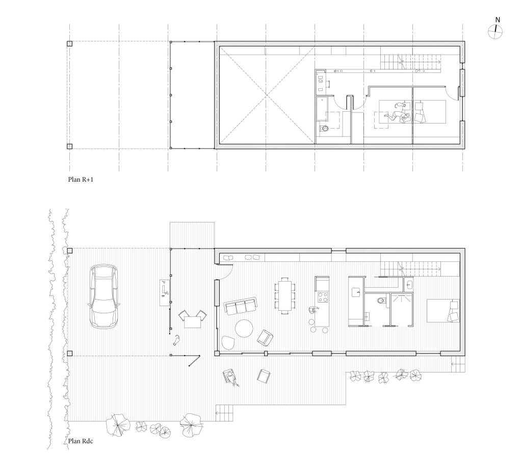
Surface : 130 m²
Budget : 200 000 € HT
Statut : Lauréat






Lauréat, avec Carole Valleau, de l’appel à idées « Je réinvente ma maison, vers une évolution des typologies traditionnelles du Calvados »
Lieu : Souleuvre-en-Bocage
Surface : 130 m²
Budget : 200 000 € HT
Statut : Lauréat